芜湖叉车司机实操培训流程
一、熟悉叉车性能与基本操作规范
作用:熟悉车辆基本构造、掌握基本操作规范
应用场景:岗前必备基础知识
二、方向感练习
(一)训练目标
1. 提升驾驶员对叉车前后轮转向差异的感知能力;
2. 培养驾驶员在狭窄空间、复杂路径中的方向控制精度;
3. 强化倒车、转弯时的空间判断与协调操作能力;
4. 减少因方向感偏差导致的碰撞、压线等安全隐患。
(二)方向感训练内容
阶段1:基础方向控制(2小时)
1. 直线行驶与倒车
- 要求学员沿直线通道正向行驶,保持车身居中,通过后视镜观察轨迹偏差;
- 倒车返回时仅通过后视镜和转头观察调整方向,禁止看方向盘;
- 难点:纠正倒车时方向修正过度的常见问题。
2. 方向盘圈数记忆训练
- 叉车静止状态下,学员闭眼转动方向盘并记忆圈数,随后回正方向盘,培养方向回正手感。
阶段2:复杂路径训练(3小时)
1. S型弯道穿行
- 正向通过S弯道,要求货叉与车身不触碰锥桶;
- 进阶:倒车反向通过S弯道,强化反向空间感。
2. 直角转弯
- 模拟仓库货架间90°转弯,训练打方向时机与转弯半径控制;
- 技巧:强调"外轮差"概念,避免内侧后轮压线。
3. 限宽通道练习
- 以低速通过限宽门,要求两侧间距误差≤5cm;
- 倒车通过限宽门,仅通过后视镜判断距离。
阶段3:综合场景模拟(2小时)
1. 倒车入库定位
- 将货物精准倒入模拟货架库位(库位宽度=货叉宽度+10cm);
- 要求一次调整到位,禁止反复进退。
2. 障碍物突发避让
- 教练随机抛掷软质障碍物(如海绵块),学员紧急调整方向躲避。
(三)安全注意事项
1. 训练全程车速不得超过5km/h,急转弯时降至3km/h以下;
2. 教练员需站在叉车侧方安全距离指挥,严禁进入车体盲区;
3. 每次训练前进行3分钟方向感口诀复述(如“倒车反向,慢打慢回”);
4. 出现连续2次碰撞障碍物时,暂停训练进行问题分析。
附:训练口诀(可张贴于叉车仪表盘)
前进看车头,倒车盯车尾;
方向慢慢打,回正要数圈;
外轮差牢记,盲区多观察。
三、叉车堆垛与拆垛练习
(一)堆垛
1、开始操作叉车前,应检查下列项目:
a)确保在装载区不会有货物坠落和损坏货物。
b)确保没有物品和货堆妨碍安全。
2、堆垛时,应按以下程序进行:
(1) 当接近堆垛区时减速行驶。
(2) 在堆垛区前停车。
(3) 检查堆垛区周围是否安全。
(4) 调整叉车位置,使叉车位于堆垛区货物放置的位置前方。
(5) 门架垂直地面并起升货叉超出堆货高度。
(6) 检查堆垛位置并向前行驶,在合适的位置停车。
(7) 确保货物在堆货位置上方,缓慢降低货叉,确保货物已放好。
3、当货物没有完全放在货架或托架的上面时:
a) 放低货叉直至货叉不再承载重量。
b) 叉车后退 1/4 货叉长度。
c) 起升货叉 50—100mm,向前移动叉车然后将货物放在合适的堆垛位置上。
(8) 观察叉车后部的空间,向后行驶叉车以避免货叉与托盘或货物相撞。
(9) 确定货叉前部离开了货物或托盘,放低货叉以便行驶。(距地面 l50—200mm)
(二)拆垛
当拆垛时,应按以下程序进行:
(1) 当接近要搬运的货物时要减速行驶。
(2) 在货物前停车(货物与叉尖相距 30cm)。
(3) 在货物前调整叉车位置。
(4) 确保货物不会超载。
(5) 门架垂直地面。
(6) 观察货叉位置同时向前移动叉车,直至货叉完全插入托盘。
·当货叉难以完全插入托盘时:
a)插入 3/4 货叉长度并抬起托盘一点(50-100mm),拉出托盘大约 100-200mm,然后再放低托盘。
b)将货叉完全插入托盘。
(7) 货叉插入托盘后,抬起托盘(50-100mm)
(8) 观察周围的空间并向后移动叉车至货物被放低。
(9) 降低货物直到距地面 150-200mm。
(10) 门架后倾以保证货物稳定。
(11) 搬运货物至目的地
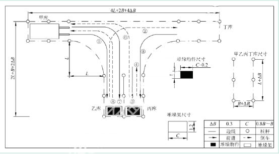
四、场地操作训练

叉车场地考试线路图
操作流程:
甲库起步→前进至乙库,拆垛堆垛物件1→后退至丁库→前进至丙库并将堆垛物件1堆垛至空位→后退至货叉完全退出堆垛架→前进并拆垛堆垛物件2→退至甲库→前进至乙库并将堆垛物件2堆垛至原空位→后退至甲库停车→结束。